Ontwikkelvisie Molenwijk Noord te Haarlem
Ontwikkelvisie Molenwijk Noord te Haarlem
Projectomschrijving
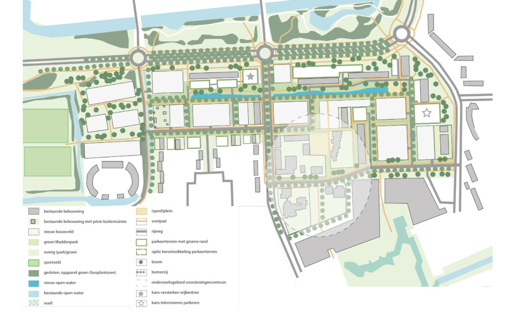
Molenwijk Noord is een na-oorlogse wijk in Haarlem-Schalkwijk. In de Ontwikkelvisie staan richtlijnen voor een grootschalige transformatie van de wijk. Aanleiding is het voornemen van woningcorporatie Pré Wonen om 11 portiekflats te slopen en deze te vervangen met een groter aantal woningen en een meer divers woningaanbod. De transformatie richt zich niet alleen op de verdichting van de wijk, maar ook op het veranderen van de bebouwingsstructuur en het verbeteren van de openbare ruimte.
Centraal in de buurt komt een park. De langgerekte parkruimte (oost-westrichting) vormt de ruggengraat in de nieuwe ontwikkeling en brengt eenheid in de buurt. Het park en de rest van de openbare ruimte moet de sociale cohesie in de wijk gaan versterken. Bestaande en nieuwe bebouwing vormen samen een meer logisch geheel. De nieuwe bebouwing zorgt voor een tussenschaal, die bemiddelt tussen de grote schaal van de Europaweg en de kleinschalige buurten van de zuidelijker delen van Molenwijk. Er wordt op de begane grond gewoond i.p.v. de huidige situatie met achterkanten en ‘dode plinten’. De auto krijgt een minder prominente plek in het straatbeeld. De openbare ruimte wordt aantrekkelijker voor wandelen, fietsen en spelen.
In samenwerking met Sabine Geerlings, ontwerpers gemeente en ontwerpers Pré Wonen (Mark van der Heide, Jan van Spanje)
Jaar: 2020-2022
Via deze link kunt u het document downloaden: Ontwikkelvisie Molenwijk Noord








